Pabellón Multiusos, Andorra

Estado: 1er premio Concurso. Pdte de construcción

Año: 2026

Promotor: Ayuntamiento Andorra, Teruel

Tipo: Equipamiento

Superficie: 2.247,53 m2

Presupuesto: 2.526.972,46  €

Proyecto: Grupo Gen Arquitectura 

Ingeniería: SYP Ingenieros

Dirección Facultativa: Grupo Gen Arquitectura

Constructor:

El Pabellón Multiusos de Andorra (Teruel) nace como un nuevo equipamiento municipal capaz de concentrar en un único edificio usos culturales, sociales y festivos, con un espacio principal flexible y representativo.

El proyecto se implanta en Avenida Dos de Mayo en el borde norte del núcleo urbano y conectado con la A-223, convirtiéndose en una pieza de referencia en el acceso a la localidad.

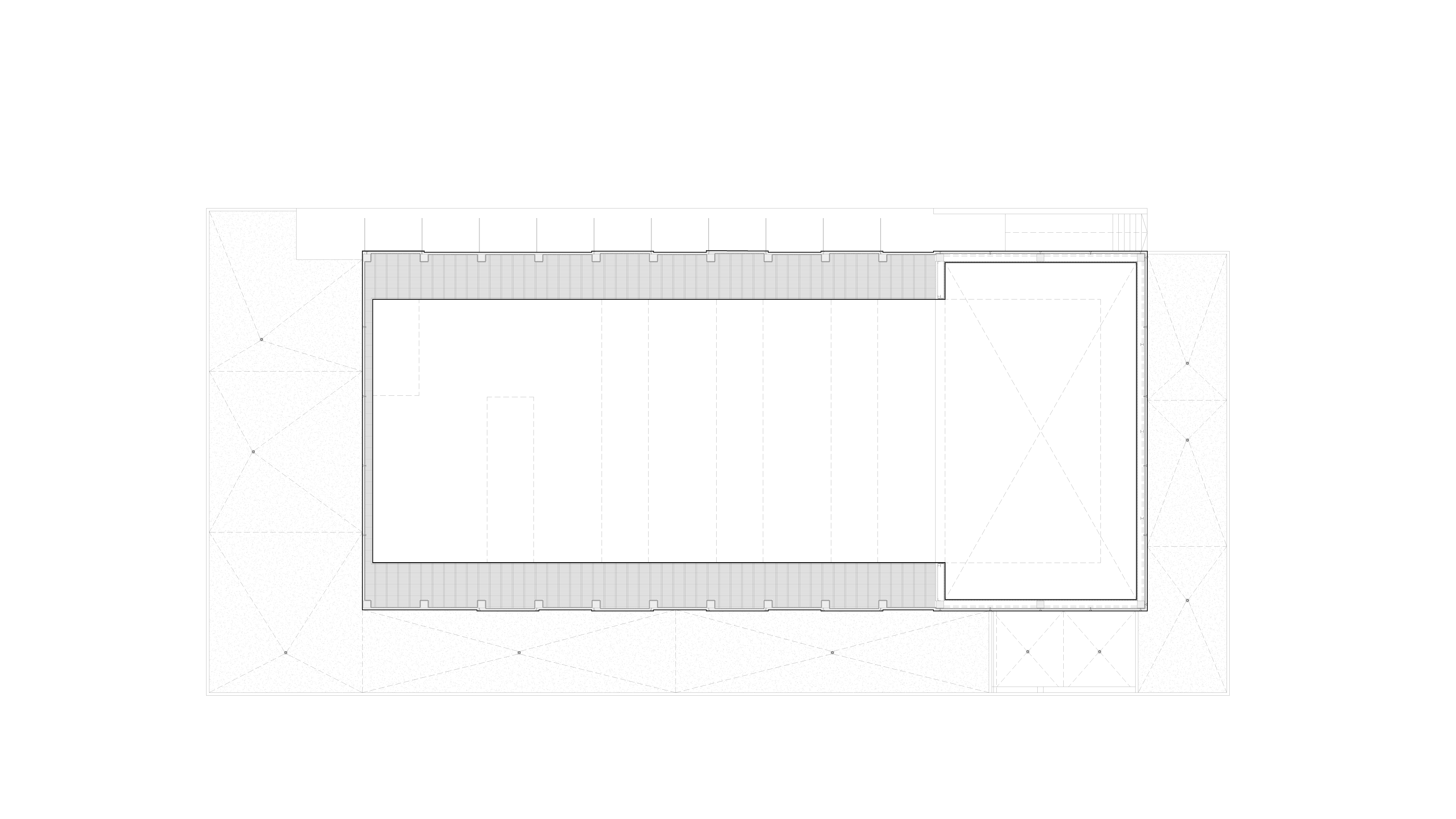
La propuesta aprovecha el desnivel del solar para integrarse con naturalidad: un zócalo ortogonal de hormigón ,casi invisible desde la avenida por la cota deprimida, organiza el programa en U alrededor del gran vacío central y libera la fachada para construir un porche en L que recoge llegadas y conduce al acceso. Sobre este basamento emerge una cubierta de ladrillo que da identidad al conjunto y genera la doble altura del espacio principal.

La urbanización completa el edificio con una auténtica antesala pública: se proponen dos grandes plazas que pueden funcionar asociadas a los eventos o como nuevo espacio urbano, y una plaza trasera logística que facilita carga/descarga y el acceso directo a escenario y camerinos.

El tratamiento del desnivel mediante taludes, rampas y escaleras cose la estación de autobuses y la zona residencial con el equipamiento.

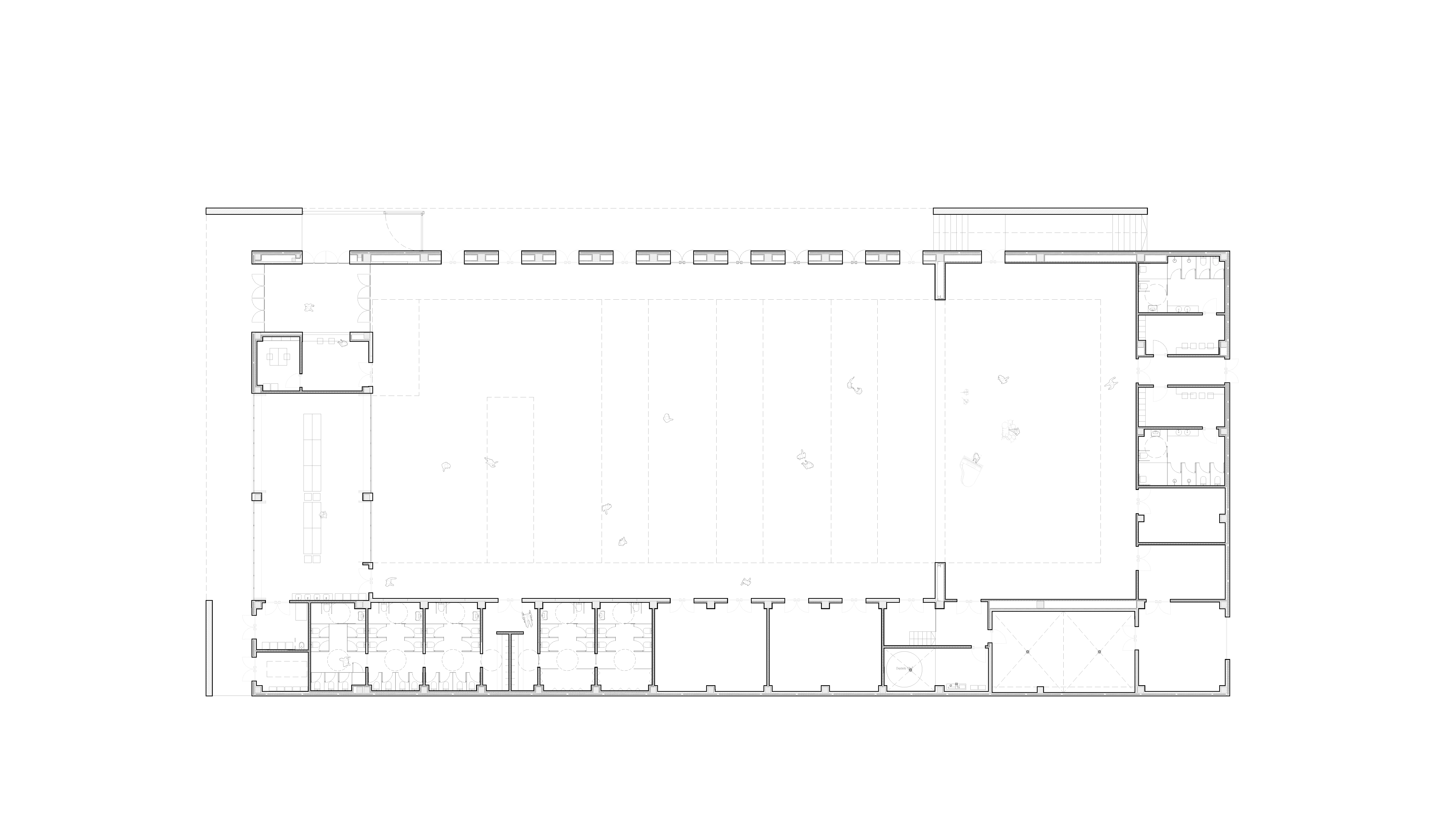
El corazón del edificio es una gran sala diáfana con zona de público y escenario, pensada para múltiples configuraciones, con una superficie útil total de 2.059,41 m² (2.247,53 m² construidos).

La cubierta modular cerámica define un perfil reconocible y se acompaña de lucernarios que aportan iluminación cenital uniforme; el interior se completa con una envolvente acústica de madera que contribuye a una atmósfera cálida y controlada.

En términos de prestaciones, el pabellón incorpora soluciones orientadas a un uso intensivo y eficiente: climatización de alta eficiencia, ventilación mecánica con recuperación de energía y fotovoltaica de autoconsumo, además de iluminación eficiente y regulable.

El confort acústico se refuerza mediante acabados fonoabsorbentes en la sala principal y a través de la geometría cóncava de los lucernarios, que contribuye a controlar la reverberación y mejorar la absorción sonora.