Reforma y ampliación de la Sede Colegio Oficial de Médicos, Zaragoza

Estado: En construcción

Año: 2026

Promotor: Ilustre Colegio Oficial de Médicos de Zaragoza

Tipo: Equipamiento

Superficie: 1.631,28m2

Proyecto: Grupo Gen Arquitectura

Colaborador: José Manuel Sancho Garralaga

Ingeniería: Aguidrovert S.L.

Estructurista: Antonio Gil Mombiela

Dirección Facultativa: Grupo Gen Arquitectura

Constructor:

La sede del Ilustre Colegio Oficial de Médicos de Zaragoza, en el Paseo de Ruiseñores, nace en 1978 del proyecto ganador de concurso de José Manuel Sancho Garralaga. Aquel edificio se concibió como una escultura monolítica de hormigón visto, de huecos rotundos y carpinterías de madera, inscrita en el lenguaje del brutalismo y articulada en torno a un gran espacio interior interconectado

Incluso la textura del hormigón ,modelada con encofrado de madera a corte de sierra, forma parte de su identidad: un ritmo y una “amabilidad” construida desde la materia.

La intervención actual parte del respeto a ese carácter original: cuidar lo existente y hacerlo más capaz. El objetivo es recuperar superficie útil, reunir actividades hoy dispersas y actualizar el edificio a normativa (accesibilidad, seguridad, evacuación e instalaciones).

Gestos clave:

  • Una nueva planta que completa el edificio
    El bajo-cubierta deja de ser un límite para convertirse en una planta plenamente operativa, ligera y eficiente, para formación y uso administrativo.

  • Contraste sereno: hormigón y ligereza
    La ampliación dialoga con la contundencia original con una presencia más cálida: vidrio y madera, muro cortina y una piel de lamas verticales que filtra el sol y suaviza la silueta.

  • Recorrido continuo, accesible para todos
    Un ascensor panorámico conecta las plantas y refuerza la idea del edificio como una secuencia interior, sin interrupciones.

  • Seguridad integrada en la arquitectura
    Una nueva escalera, clara y bien situada, ordena el movimiento y garantiza las condiciones de evacuación.

  • Luz y aire en el corazón del sótano
    Un patio inglés vegetalizado transforma el nivel -1: abre el edificio, lo ventila, lo ilumina y mejora su calidad espacial.

  • Energía y futuro
    Renovación de instalaciones con aerotermia y previsión de fotovoltaica en cubierta técnica.

  • Espacios que se adaptan
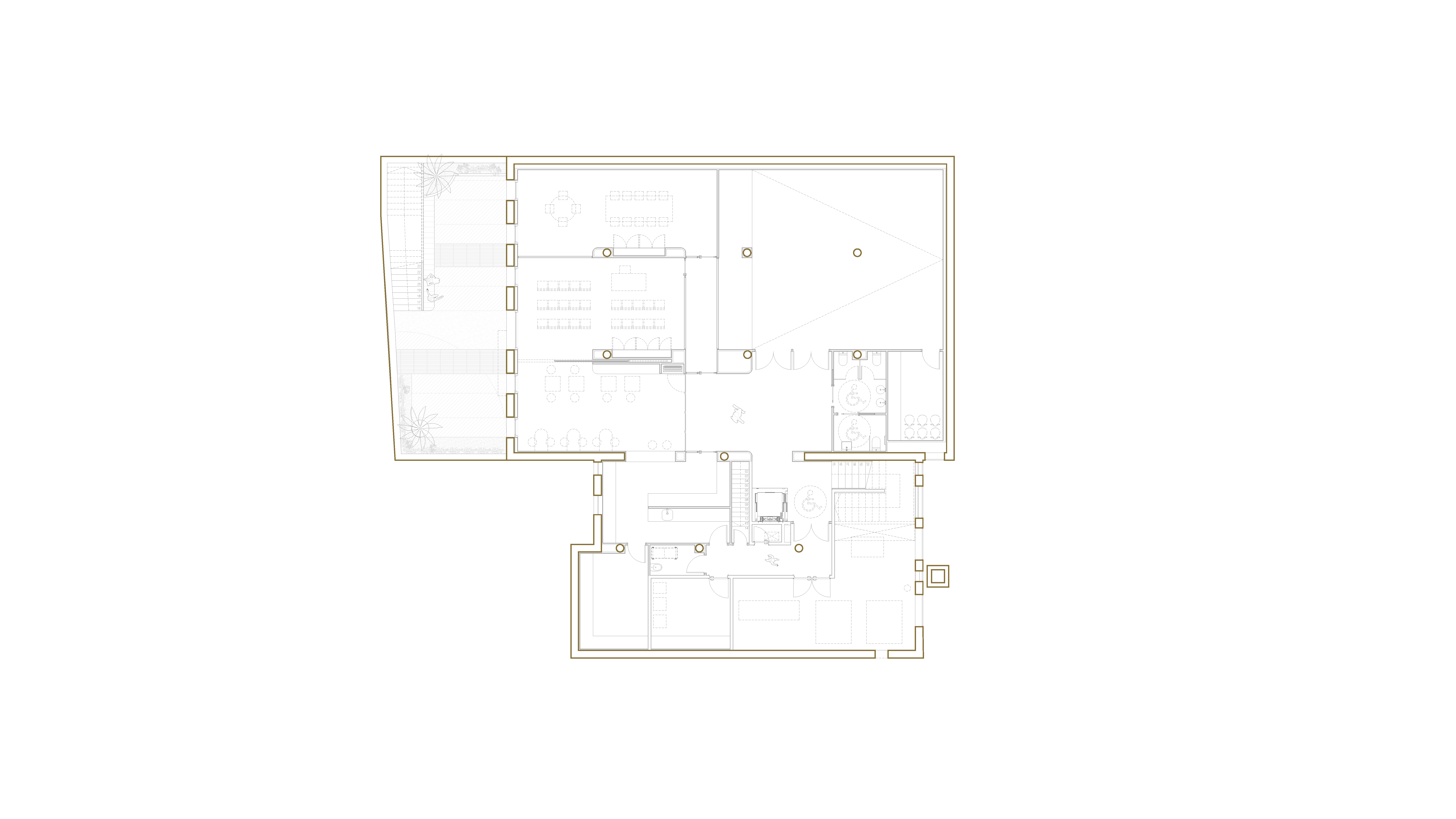
    La planta de formación se organiza en tres ámbitos modulables, capaces de separarse o unirse según cada actividad.

Planta a planta:

  • Sótano -2: archivo en espacio diáfano, conectado por escalera y ascensor.

  • Sótano -1: sala polivalente y áreas de relación/actividad, con patio inglés e instalaciones generales.

  • Planta baja: vestíbulo a doble altura, salón de actos y administración; nuevo núcleo de comunicación.

  • Planta 1: áreas de gestión (Junta, Presidencia, Secretaría, Tesorería), con transparencias interiores.

  • Planta 2: formación continuada y despachos/tutorías, con control solar mediante lamas